2890 Autumn Woods Drive, Chaska, MN 55318
2890 Autumn Woods Drive

2890 Autumn Woods Drive

2890 Autumn Woods Drive, Chaska, MN

$1,350,000

HIGHLIGHTS
  • 5 Beds
  • 4 Full Baths
  • 1 Half Bath
  • 0.4 Acres Lot
  • 5,926 Sq.Ft. Living
  • 1984 Year Built
  • For Sale Status
  • 7014412 MLS® ID
Private Executive Home Overlooking the 14th Fairway at Hazeltine National

Private golf-course residence overlooking the 14th fairway of legendary Hazeltine National Golf Club, this custom executive home offers a rare blend of architectural character, flexible living spaces, and one of the west metro's most iconic golf course settings.

Expansive outdoor living areas--including a large entertaining deck and fire-lit patio--capture sweeping fairway views, while mature trees provide a surprising level of privacy rarely found on the course. With the home's west-facing orientation, evenings often end with spectacular sunsets stretching across the fairway--one of the quiet luxuries of living along this private stretch of Hazeltine.

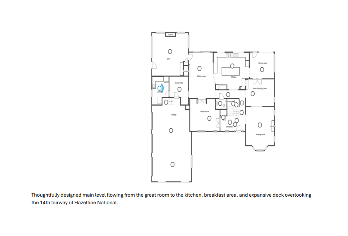
At the heart of the home is a dramatic great room with soaring wood ceilings and a lodge-style fireplace, creating a striking focal point that flows naturally into the kitchen and sunlit breakfast area--spaces designed for both everyday living and effortless entertaining.

Thoughtfully designed for gathering and retreat, the home features a luxurious primary suite, a rare second primary suite ideal for guests or multigenerational living, and a dedicated wellness studio perfect for hot yoga, fitness, or spa-inspired relaxation.

Multiple living and entertaining spaces create a natural rhythm throughout the home--from formal dinners and celebrations to relaxed mornings overlooking the fairway and summer evenings on the deck as the sun sets across the course.

Located along Hazeltine National Golf Club--host of the 2026 KPMG Women's PGA Championship and the 2029 Ryder Cup--this residence offers a lifestyle rarely found in the west metro.
Show MoreShow Less
image

Schedule a Showing

We would love to show you our beautiful property. Please select your preferred date and time below. An agent will be in touch shortly to confirm your appointment.

Schedule a Showing

We would love to show you our beautiful property. Please select your preferred date and time below. An agent will be in touch shortly to confirm your appointment.
Thank you for your interest in 2890 Autumn Woods Drive, Chaska, MN 55318. We are reviewing your request and will be in touch shortly!
Ryan Platzke

Ryan Platzke

Realtor®

FEATURES & AMENITIES

Interior

  • Total Bedrooms5
  • Total Bathrooms5
  • Full Bathrooms4
  • Half Bathrooms1
  • Laundry roomLaundry Room, Main Level, Sink
  • FireplaceTwo Sided, Family Room, Gas, Living Room, Wood Burning
  • APPLIANCESCooktop, Dishwasher, Disposal, Double Oven, Dryer, Exhaust Fan, Humidifier, Gas Water Heater, Water Filtration System, Microwave, Refrigerator, Stainless Steel Appliances, Wall Oven, Washer, Water Softener Owned, Wine Cooler

Area & Lot

  • Status For Sale
  • Living Area5,926 Sq.Ft.
  • Total Area6,122 Sq.Ft.
  • Lot Area0.4 Acres
  • MLS® ID7014412
  • TypeResidential
  • YEAR BUILT1984
  • School DistrictEastern Carver County Schools

Exterior

  • STORIES2
  • Garage Spaces3.0
  • Water SourceCity Water/Connected
  • roofShake, Pitched
  • lot featuresOn Golf Course
  • parkingAttached Garage, Driveway - Other Surface, Garage Door Opener, Heated Garage, Insulated Garage, Storage
  • HEAT TYPEForced Air, Fireplace(s), In-Floor Heating, Zoned
  • AIR CONDITIONINGCentral Air
  • sewerCity Sewer/Connected
  • Disability FeaturesNone

Financial

  • Sales Price$1,350,000
  • Real Estate Tax $10,978/yr
  • HOA Fees $290/yr
View Virtual Tour

Mortgage Calculator

Estimate your monthly mortgage payment, including the principal and interest, property taxes, and HOA. Adjust the values to generate a more accurate rate.
All estimates are provided for informational purposes only. Actual amounts may vary.
$0,000 Your Payment 20 15 65
$0,000 Your Payment

WORK WITH US

We helps clients navigate the waters of homeownership, We offers an insider’s wisdom and insight, serving as wise counsel along the way.

Contact Us